Površina 72,95 m2
Apartman S9
Apartman S9 nalazi se na etaži 0. Prilikom izrade korišteni su najkvalitetniji i najmoderniji materijali kako bi svaki trenutak proveden u njemu bio užitak. Nudimo i potpunu uslugu "ključ u ruke" te stan možemo u potpunosti opremiti kako biste mogli direktno prebaciti na uživanje. Primjere opremanja možete pronaći u galeriji ispod.
-
-
Sobnost Dvosoban
-
Tip prostoraApartman
-
Status Prodano
Vrhunski materijali
Koristimo samo najnovije i najkvalitetnije materijale u izradi
Bezvremenski dizajn
Moderan i atraktivan dizajn nikoga neće ostaviti ravnodušnim
Blizina sadržaja
Zgrada se nalazi u blizini svih bitnih sadržaja - trgovina, plaža, škole, pošte i svih drugih bitnih objekata
Ključ u ruke
Nudimo mogućnost kompletnog opremanja stanja po principu "Ključ u ruke" kako ne biste morali brinuti o ničemu - pogledajte primjere u slikama iznad
Mogućnost prilagodbe
U slučaju da želite napraviti neke izmjene u rasporedu ili nešto drugačije urediti - sve je moguće dogovoriti
Mir i tišina
Zelenka je miran predio grada odmaknut od glavnih prometnica i buke prolaznika - idealna lokacija za odmor
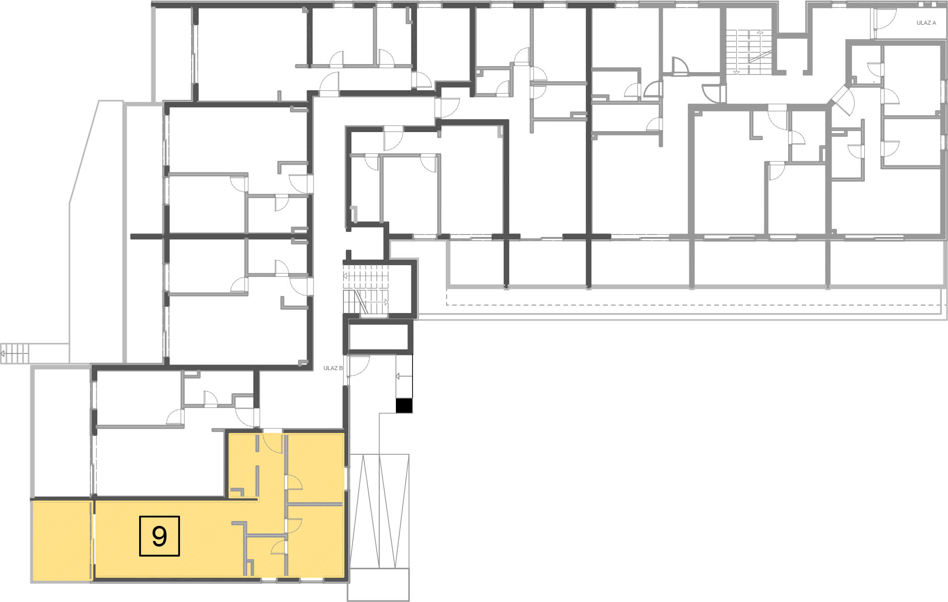
Tlocrt apartmana
| Broj prostorije | Naziv prostorije | Površina (m2) | Koeficijent obračuna | Prodajna površina (m2) | |
|---|---|---|---|---|---|
| 1 | Hodnik | 8,50 | 1,00 | 8,50 | |
| 2 | Kupaonica 1 | 4,05 | 1,00 | 4,05 | |
| 3 | Kupaonica 2 | 3,65 | 1,00 | 3,65 | |
| 4 | Soba 1 | 9,75 | 1,00 | 9,75 | |
| 5 | Soba 2 | 10,20 | 1,00 | 10,20 | |
| 6 | Kuhinja + blagavaonica | 9,15 | 1,00 | 9,15 | |
| 7 | Dnevni boravak | 18,45 | 1,00 | 18,45 | |
| 8 | Lođa | 12,30 | 0,75 | 9,20 | |
| Ukupno | 76,05 | 72,95 |
Hodnik
Broj prostorije:
1
Površina (m2):
8,50
Koeficijent obračuna:
1,00
Prodajna površina (m2):
8,50
Kupaonica 1
Broj prostorije:
2
Površina (m2):
4,05
Koeficijent obračuna:
1,00
Prodajna površina (m2):
4,05
Kupaonica 2
Broj prostorije:
3
Površina (m2):
3,65
Koeficijent obračuna:
1,00
Prodajna površina (m2):
3,65
Soba 1
Broj prostorije:
4
Površina (m2):
9,75
Koeficijent obračuna:
1,00
Prodajna površina (m2):
9,75
Soba 2
Broj prostorije:
5
Površina (m2):
10,20
Koeficijent obračuna:
1,00
Prodajna površina (m2):
10,20
Kuhinja + blagavaonica
Broj prostorije:
6
Površina (m2):
9,15
Koeficijent obračuna:
1,00
Prodajna površina (m2):
9,15
Dnevni boravak
Broj prostorije:
7
Površina (m2):
18,45
Koeficijent obračuna:
1,00
Prodajna površina (m2):
18,45
Lođa
Broj prostorije:
8
Površina (m2):
12,30
Koeficijent obračuna:
0,75
Prodajna površina (m2):
9,20
Ukupno
Površina (m2):
76,05
Prodajna površina (m2):
72,95




