Area 69.20 m2
Apartment S12
Apartment S12 is located on floor no. 1. We are using only the best and latest material during construction in order to make every moment spent a delight. We also offer a complete furnishing service - meaning everything will be ready for you when you move in. An example of how the apartment can be furnished can be found in the gallery below.
-
-
Room count Two rooms
-
TypeApartment
-
Status Sold
Top-notch materials
We use only the best and latest material in construction
Timeless design
Modern and attractive design will amaze you
Nearby facilities
Building is in the vicinity of all important facilites - shop, beaches, school, post office and other
Turnkey service
We offer a complete turnkey service so you don't have to worry about anything - have a look at the examples above
Customization options
In case you would like to alter the layout or do other changes - anything can be arranged
Peace and quiet
Zelenka is a calm area away from the main street and tourist noise - an ideal location to relax
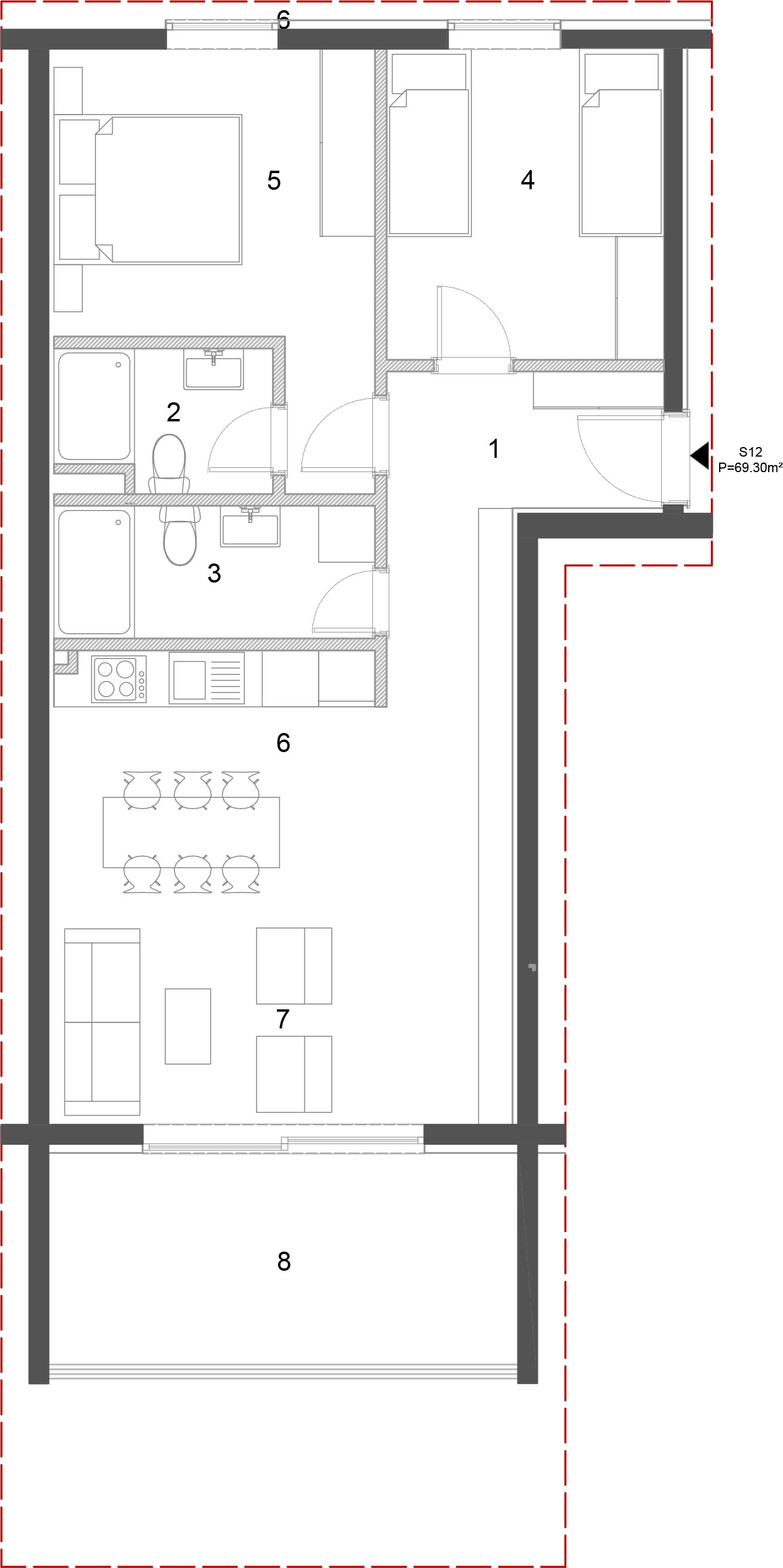
Apartment plan
| Room number | Room name | Area (m2) | Calculation coefficient | Sales area (m2) | |
|---|---|---|---|---|---|
| 1 | Hallway | 7.15 | 1.00 | 7.15 | |
| 2 | Bathroom 1 | 3.35 | 1.00 | 3.35 | |
| 3 | Bathroom 2 | 4.80 | 1.00 | 4.80 | |
| 4 | Bedroom 1 | 9.80 | 1.00 | 9.80 | |
| 5 | Bedroom 2 | 12.10 | 1.00 | 12.10 | |
| 6 | Kitchen | 4.00 | 1.00 | 4.00 | |
| 7 | Living R. + Dining R. | 19.60 | 1.00 | 19.60 | |
| 8 | Loggia | 11.35 | 0.75 | 8.50 | |
| Total | 72.15 | 69.30 |
Hallway
Room number:
1
Area (m2):
7.15
Calculation coefficient:
1.00
Sales area (m2):
7.15
Bathroom 1
Room number:
2
Area (m2):
3.35
Calculation coefficient:
1.00
Sales area (m2):
3.35
Bathroom 2
Room number:
3
Area (m2):
4.80
Calculation coefficient:
1.00
Sales area (m2):
4.80
Bedroom 1
Room number:
4
Area (m2):
9.80
Calculation coefficient:
1.00
Sales area (m2):
9.80
Bedroom 2
Room number:
5
Area (m2):
12.10
Calculation coefficient:
1.00
Sales area (m2):
12.10
Kitchen
Room number:
6
Area (m2):
4.00
Calculation coefficient:
1.00
Sales area (m2):
4.00
Living R. + Dining R.
Room number:
7
Area (m2):
19.60
Calculation coefficient:
1.00
Sales area (m2):
19.60
Loggia
Room number:
8
Area (m2):
11.35
Calculation coefficient:
0.75
Sales area (m2):
8.50
Total
Area (m2):
72.15
Sales area (m2):
69.30




